Душевой уголок BelBagno UNO-195-A-2-80-C-Cr
Артикул:UNO-195-A-2-80-C-Cr
О товаре
Характеристики
Материал профиля
анодированный алюминий
Серия
UNO-195
Форма
квадратная
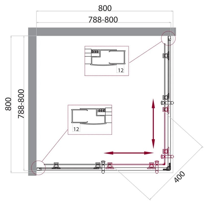
Регулируемая ширина мм
788-800
Тип открывания дверей
раздвижная
Количество дверей
2
Толщина стекла
5 мм
Тип стекла
Прозрачная
Ширина входа, мм
400
Ориентация
универсальная
Монтаж
Напольный, на поддон, пристенный в угол
Вес
34.6 кг
Бренд
BelBagno
Страна
Италия
Гарантия
3 года
Комплектация
Двойные подшипниковые ролики
Дополнительная информация
Прозрачный
Поддон в комплекте
нет, приобретается отдельно
Материал полотна двери
закаленное стекло
Цвет профиля
хром
Назначение
Душевой уголок

























